Vuokrattava kohde - OVV Asuntopalvelut

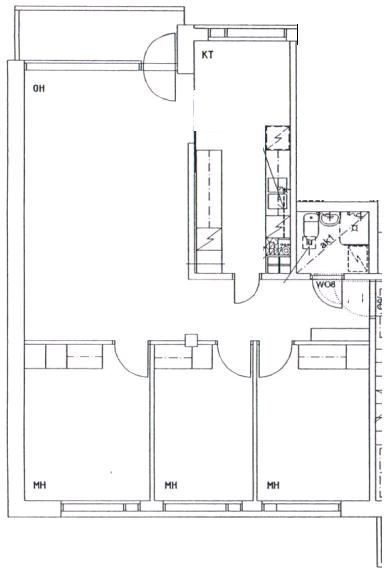
Kerrostalo, 80,5 m², 4h,k,kh,p(lasit)

Siirtolantie 3 A, 90530 Oulu / VÄLIVAINIO

810 €/kk

Tee hakemus asunnosta / Apply for this apartment

Esittely

Siistikuntoinen ja tilava huoneisto Välivainiolla.
Lasitettu parveke.
Keittiökaapit uusittu 2000 luvun alussa.
Lattioissa muovimatto, seinät maalipinnoin.
Keittiössä jää/pakastinkaappi, liesi ja astianpesukone.
Taloyhtiöön ikkunaremontti ja putkiremontti tehty 2009. Putkiremontin yhteydessä kylpyhuone täysin uudistettu. Pesukoneliitäntä. Vesi ja sähkö kulutuksen mukaan.
Taloyhtiön laajakaista sisältyy vuokraan.
Lemmikit on kielletty allergiasyistä.
Sopii hyvin myös kimppakämpäksi esim. kolmelle henkilölle.
Hyvät kulkuyhteydet keskustaan ja yliopiston suuntaan.
Autopaikkatilannetta voit tiedustella isännöitsijätoimistosta (Tuiran isännöinti – p. 08-41527780)

Perustiedot

  • Vapaa:
    Heti
  • Vuokrasopimus:
    Toistaiseksi voimassaoleva
  • Esittelyaika: Kysy esittelyaikaa!
  • Sijainti:
    Siirtolantie 3 A, 90530 Oulu / VÄLIVAINIO
  • Tyyppi:
    Kerrostalo
  • Kerros:
    3
  • Kerrosten lukumäärä:
    4
  • Hissi:
    Kyllä
  • Pinta-ala:
    80,5 m²
  • Lemmikit sallittu:
    Ei
  • Tupakointi sallittu:
    Ei
  • Autopaikka:
    Isännöitsijän kautta
  • Taloyhtiön tilat:
    Sauna, Pesutupa, Kuivaushuone, Lämminvarasto, Urheiluvälinevarasto,

Kustannukset

  • Vuokra:
    810 €/kk
  • Vakuus:
    1 kk vuokra
  • Kotivakuutus pakollinen:
    Kyllä
  • Vesimaksu:
    Kulutuksen mukaan
  • Sähkö:
    Kulutuksen mukaan

Taloyhtiön tiedot

  • Yhtiön nimi:
    Koy Käenrieska
  • Taloyhtiön osoite:
    Siirtolantie 3, 90420 OULU
  • Rakennusvuosi:
    1963
  • Energialuokka:
    E (2018)
  • Remonttihistoria:

    LVIS-remontti 2009,
    Ikkunat 2010,
    Hissit 2010

  • Vesi:
    Vesimaksu kulutuksen mukaan



Tee hakuvahti   Katso muut kohteemme

Tee hakemus tästä
Sulje

Jokaisen hakijan on täytettävä oma hakemus ja lisättävä lisätietoja-kenttään tieto, kenen kanssa on kohdetta hakemassa.

 
Submit application
Sulje

Each applicant must fill in their own application and add information in the additional information field with whom they are applying for the item.

Ota yhteyttä välittäjään

OVV Oulu
Kansankatu 47, 90100 Oulu
oulu@ovv.com
040 - 5918677

Lähetä viesti OVV-toimistoon mikäli esittelyaikaa ei ole ilmoitettu kohteen tiedoissa

Kartta