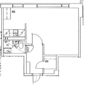
Kerrostalo, 29 m², 1h,kk,kh
Siirtolantie 3 A, 90530 Oulu / VÄLIVAINIO
480 €/kk
Tee hakemus asunnosta / Apply for this apartmentEsittely
Siistikuntoinen yksiö Välivainiolla.
Lattioissa muovimatto, seinät maalipinnoin, ikkunoissa sälekaihtimet.
Keittiökaapit vaihdettu 2000-luvun alussa. Keittokomerossa jääkaappi ja liesi.
Taloyhtiössä ikkunaremontti ja putkiremontti tehty 2009. Putkiremontin yhteydessä kylpyhuone täysin uudistettu. Pesukoneliitäntä ja paikka 40 cm leveälle koneelle.
Vesi ja sähkö kulutuksen mukaan.
Hissit rakennettu 2010.
Hyvät kulkuyhteydet keskustaan ja yliopiston suuntaan.
Lemmikit on kielletty allergiasyistä.
Hakijalta edellytetään puhtaat luottotiedot.
Perustiedot
-
Vapaa:Heti
-
Vuokrasopimus:Toistaiseksi voimassaoleva
- Esittelyaika: Kysy esittelyaikaa!
-
Sijainti:Siirtolantie 3 A, 90530 Oulu / VÄLIVAINIO
-
Tyyppi:Kerrostalo
-
Kerros:4
-
Kerrosten lukumäärä:4
-
Hissi:Kyllä
-
Pinta-ala:29 m²
-
Lemmikit sallittu:Ei
-
Tupakointi sallittu:Ei
-
Autopaikka:Isännöitsijän kautta
-
Taloyhtiön tilat:Sauna, Pesutupa, Kuivaushuone, Lämminvarasto, Urheiluvälinevarasto,
Kustannukset
-
Vuokra:480 €/kk
-
Vakuus:1 kk vuokra
-
Kotivakuutus pakollinen:Kyllä
-
Vesimaksu:Kulutuksen mukaan
-
Sähkö:Kulutuksen mukaan
Taloyhtiön tiedot
-
Yhtiön nimi:Koy Käenrieska
-
Taloyhtiön osoite:Siirtolantie 3, 90420 OULU
-
Rakennusvuosi:1963
-
Energialuokka:E (2018)
-
Remonttihistoria:
LVIS-remontti 2009,
Ikkunat 2010,
Hissit 2010 -
Vesi:Vesimaksu kulutuksen mukaan
