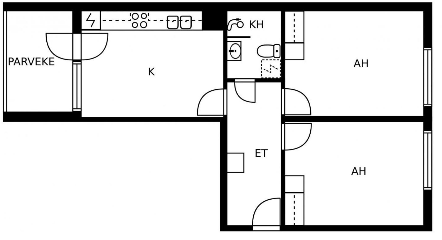
Kerrostalo, 50,5 m², 2h + k + parveke
Puolukkakuja 1 A, 40340 Jyväskylä / KANGASLAMPI
528 €/kk
Tee hakemus asunnosta / Apply for this apartmentEsittely
Hyväkuntoinen pintaremontoitu kaksio luonnonläheisessä ympäristössä, hyvien ulkoilumaastojen läheisyydessä. Asunto sopii pohjaratkaisultaan hyvin myös kaveruksille. Huhtasuon palvelut vieressä. Asuntoon lisäksi asennettu astianpesukone sekä kylpyhuone maalattu ja vesikalusteita vaihdettu (allaskaappi sekä hana).
Seppälän kattavat palvelut (mm. kauppakeskus Seppä, Prisma jne.) n. 1,5 km päässä ja keskustaan matkaa n. 4 km. Huhtasuon palvelut kävelyetäisyydellä. Huhtasuolta löytyy mm. kirjasto, lähikauppa, terveysasema, yhtenäiskoulu, ravintoloita. Loistavat ulkoilu -ja urheilumahdollisuudet alle kilometrin päässä (Kangasvuoren sekä Kangaslammen ulkoilumaastot, Huhtasuon liikuntapuiston pururadat, ladut, jääkiekkokaukalo, luistinrata, frisbeegolfrata).
Taloyhtiön 10 MB internetyhteys sisältyy vuokraan (nopeutta nostettavissa edullisesti). Kaakeloidussa kylpyhuoneessa tila ja liitäntä pyykinpesukoneelle.
Vuokrasopimus toistaiseksi voimassa olevana, vuokrasopimukseen sitouduttava kuitenkin vähintään vuodeksi – aiemmin irtisanottaessa 1 kk:n vuokraa vastaava summa hyvitettävä vuokranantajalle.
Perustiedot
-
Vapaa:01.03.2026
-
Vuokrasopimus:Toistaiseksi voimassaoleva
- Esittelyaika: Kysy esittelyaikaa!
-
Sijainti:Puolukkakuja 1 A, 40340 Jyväskylä / KANGASLAMPI
-
Tyyppi:Kerrostalo
-
Kerros:4
-
Kerrosten lukumäärä:4
-
Hissi:Ei
-
Pinta-ala:50,5 m²
-
Lemmikit sallittu:Neuvoteltavissa
-
Tupakointi sallittu:Asunnossa on tupakointi kielletty.
-
Autopaikka:Jonotuksen mukaan - yleensä paikkoja ollut hyvin saatavilla
-
Taloyhtiön tilat:Hissi, ulkoiluvälinevarasto, pesutupa (Muurainkuja), kuivaushuone (Muurainkuja), irtaimistovarastot (Muurainkuja), sauna- ja pukuhuonetilat, talovarastot, kaapeli-TV, laajakaista
Kustannukset
-
Vuokra:528 €/kk
-
Vakuus:1 kk vuokra
-
Kotivakuutus:Vuokralaisella tulee olla voimassa oleva kotivakuutus vastuuvakuutuksella.
-
Vesimaksu:32 €/hlö/kk
-
Sähkö:Vuokralaisen otettava oma sähkösopimus
Taloyhtiön tiedot
-
Yhtiön nimi:Asunto Oy Jyväskylän Kangaspuistikko
-
Taloyhtiön osoite:Puolukkakuja 1, 40340 JYVÄSKYLÄ
-
Rakennusvuosi:1982
-
Energialuokka:C2007
-
Remonttihistoria:Peruskorjaus on tehty vuonna 1999. Työ on käsittänyt 5-kerroksisen pistetalon ja 3-kerroksisen 3-rappuisen lamellitalon saneeraus- ja muutostyöt seuraavasti: - LVI-työt ovat sisältäneet mm. vanhojen rakennuksessa ja tontilla olevien runko(vaaka)viemäreiden kuvauksen ja "puulauksen" aina kaupungin viemäriverkostoon saakka - sähkötyöt - parvekkeiden ja julkisivujen korjaukset - huoneistojen kunnostus, Elisa laajakaista 2011, puhelinpesularahastin 2011, huoneistojen vesikalusteiden tarkistus 2014, lukostot uusittu yhteisten tilojen ja ulko-ovien 2016, keittiön 2 A 23 käyttövesiputken vuotokorjaus 2017 (samalla kierrettiin kaikkien asuntojen vesikalusteet ja tarvittavat huoltokorjaukset).
-
Vesi:Vesimaksu 32 €/hlö/kk
