Vuokrattava kohde - OVV Asuntopalvelut

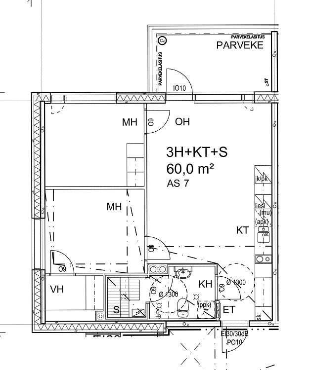
Kerrostalo, 60 m², 3h + ak + vh

Mukkulankatu 16, 15210 Lahti / Kivimaa

880 €/kk

Tee hakemus asunnosta / Apply for this apartment

Esittely

Tasokas saunallinen kolmio missä laadukkaat materiaalit ja mukava pohjaratkaisu sekä tilava lasitettu parveke. Varustelutasoon kuuluvat mm. asunhuoneiden laminaattilattiat, vaatehuone, keittiössä jääkaappi, pakastin, liesituuletin, astianpesukone, laatoitetut märkätilat lattialämmityksellä. 2/6 asuinkerros.

Vakuus 1 kuukaden vuokra, lemmikkieläimet neuvoteltavissa. Ensimmäinen mahdollinen irtisanomispäivä 11kk vuokrasuhteen alkamisesta.

Perustiedot

  • Vapaa:
    Heti
  • Vuokrasopimus:
    Toistaiseksi voimassaoleva
  • Esittelyaika: Kysy esittelyaikaa!
  • Sijainti:
    Mukkulankatu 16, 15210 Lahti / Kivimaa
  • Tyyppi:
    Kerrostalo
  • Kerros:
    2
  • Kerrosten lukumäärä:
    6
  • Hissi:
    Kyllä
  • Pinta-ala:
    60 m²
  • Lemmikit sallittu:
    Neuvoteltavissa
  • Tupakointi sallittu:
    Ei

Kustannukset

  • Vuokra:
    880 €/kk
  • Vakuus:
    1 kk vuokra
  • Kotivakuutus pakollinen:
    Kyllä
  • Vesimaksu:
    25 €/hlö/kk

Taloyhtiön tiedot

  • Yhtiön nimi:
    As Oy Lahden Tammiraitti
  • Taloyhtiön osoite:
    ,
  • Rakennusvuosi:
    2018
  • Energialuokka:
    C
  • Vesi:
    Vesimaksu 20 €/hlö/kk



Tee hakuvahti   Katso muut kohteemme

Tee hakemus tästä
Sulje

Jokaisen hakijan on täytettävä oma hakemus ja lisättävä lisätietoja-kenttään tieto, kenen kanssa on kohdetta hakemassa.

Submit application
Sulje

Each applicant must fill in their own application and add information in the additional information field with whom they are applying for the item.

Ota yhteyttä välittäjään

OVV Lahti
Vapaudenkatu 2, 15110 LAHTI
lahti@ovv.com
050 3400 478

Kysymyksiä liittyen asuntoon?

Lähetä viesti
Sulje

Lähetä viesti liittyen asuntoon

Kartta