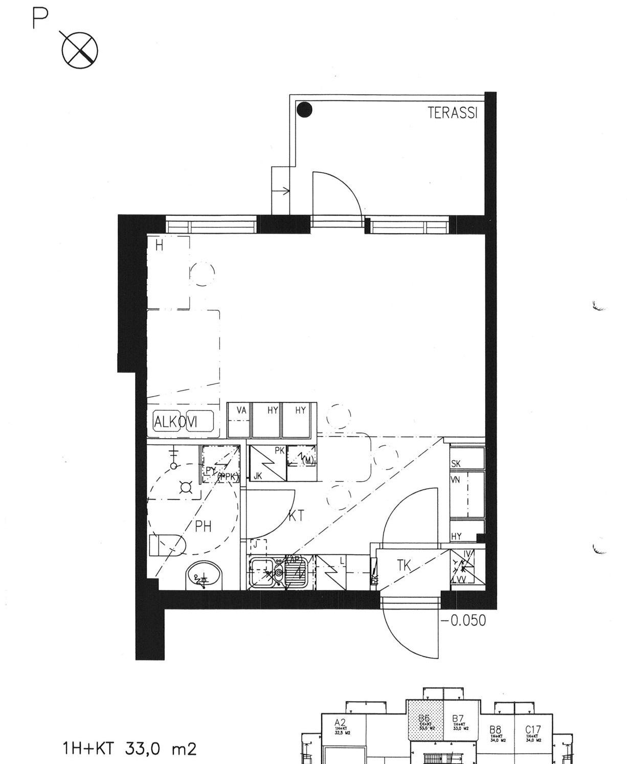
Kerrostalo, 33 m², 1h + tupakeittiö + parveke
Kokkomäentie 4, 80140 Joensuu
520 €/kk
Tee hakemus asunnosta / Apply for this apartmentEsittely
Tilava yksiö vuonna 2008 valmistuneesta talosta Noljakassa.
Talo sijaitsee Noljakassa omakotitaloalueen kupeessa. Hyvät julkisen liikenteen yhteydet ja kevyenliikenteen reitit keskustaan. Lähellä Noljakan palveluita. Asunto sijaitsee maantasossa ja siihen on esteetön kulku. Tupakeittiö, jonka varusteina jääkaappipakastin ja liesi. Siisti kaakeloitu kylpyhuone, jossa liitäntä ja hyvin tilaa pesukoneelle. Hyvin kaappitilaa ja tilaa tuova alkovi sängylle. Katettu parveke.
Asunnon lämmitysmuotona sähkölämmitys!
Huoneisto vuokrataan mielellään pidemmäksi aikaa, kuitenkin vähintään vuodeksi.
Perustiedot
-
Vapaa:Heti / Sopimuksen mukaan
-
Vuokrasopimus:Toistaiseksi voimassaoleva
- Esittelyaika: Kysy esittelyaikaa!
-
Sijainti:Kokkomäentie 4, 80140 Joensuu
-
Tyyppi:Kerrostalo
-
Kerros:1
-
Kerrosten lukumäärä:2
-
Hissi:Ei
-
Pinta-ala:33 m²
-
Lemmikit sallittu:Ei
-
Tupakointi sallittu:Ei
-
Autopaikka:Jokaiselle asunnolle kuuluu 1 autopaikka. Veloitus on 30 € kausi. Vuokralainen maksaa maksun vuokranantajalle.
-
Taloyhtiön tilat:ullakko/kellari, väestönsuoja
Kustannukset
-
Vuokra:520 €/kk
-
Vakuus:1 kk vuokra
-
Muu vakuus:+ Henkilötakaus
-
Kotivakuutus:Laaja kotivakuutus
-
Vesi:Tasaus kulutuksen mukaan. Ennakkomaksu maksetaan vuokranantajalle vuokranmaksun yhteydessä.
-
Vesimaksu:20 €/hlö/kk
-
Sähkö:Vuokralainen tekee oman sähkösopimuksen. (Sähkölämmitys)
Taloyhtiön tiedot
-
Yhtiön nimi:Kokkomäentie 4
-
Taloyhtiön osoite:Kokkomäentie 4, 80140 JOENSUU
-
Rakennusvuosi:2008
-
Energialuokka:C
-
Remonttihistoria:kaapeli-TV 2010, C-rapun valaistuksen kunnostus 2012, A-rapun liiketunnistin 2012, B-rapun 2013, verkkoeste pulujen estämiseksi 2013, pesualtaiden viemäritiivisteet ja palovaroittmien paristot vaihdettu 2013, ilmanvaihtokanavien puhdistus 2017, julkisivun puuverhoilua maalattu 2021.
-
Tulevat remontit:Ei tulevia remontteja (03/22).
-
Vesi:Vesimaksu kulutuksen mukaan
