Vuokrattava kohde - OVV Asuntopalvelut

Kerrostalo, 56 m², 2h + k + vh + parveke

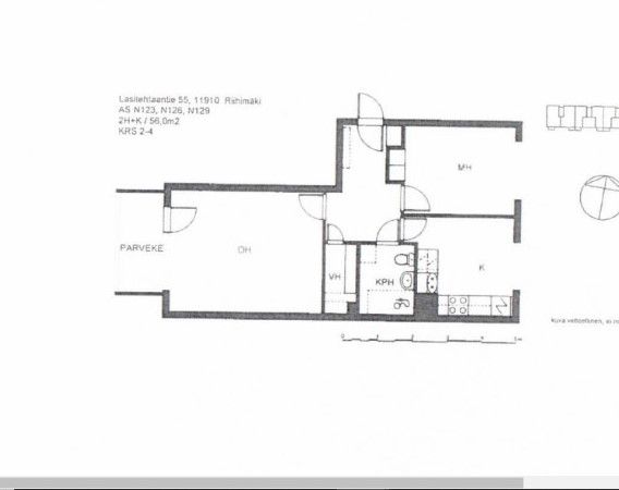
Lasitehtaantie 55 N, 11910 Riihimäki / Hirsimäki

600 €/kk

Tee hakemus asunnosta / Apply for this apartment

Esittely

Siistikuntoinen päätyasunto suositulla alueella. Ylin kerros. Talossa ei ole hissiä.
Parveke metsän puolella.
Hyvä pohjaratkaisu, selkeä huonejako. Tilava kylppäri, pyykinpesukoneelle paikka. Vaatehuoneessa reilusti tilaa.
Elisa Taloyhtiö laajakaista + kaapeli TV
Hyvät ulkoilumaastot.

Kelan maksusitoumus vakuudelle sopii.

10 min kävelymatka Hyriaan, keskustaan 20 min kävellen.
Bussiyhteys rautatieasemalle ja ydinkeskustaan sekä Merkoksen alueelle.
Lähimmät kaupat: Sale Karavaani, K-Supermarket Kumela

Sovi näyttö tiina.lindroos@ovv.com

Perustiedot

  • Vapaa:
    01.04.2026. Vuokrataan vähintään vuodeksi
  • Vuokrasopimus:
    Toistaiseksi voimassaoleva
  • Esittelyaika: Kysy esittelyaikaa!
  • Sijainti:
    Lasitehtaantie 55 N, 11910 Riihimäki / Hirsimäki
  • Tyyppi:
    Kerrostalo
  • Kerros:
    3
  • Kerrosten lukumäärä:
    3
  • Hissi:
    Ei
  • Pinta-ala:
    56 m²
  • Lemmikit sallittu:
    harkinnanvaraisesti
  • Tupakointi sallittu:
    kielletty myös parvekkeella
  • Autopaikka:
    isännöitsijän kautta 15 e / kk
  • Rakennusvuosi:
    1972
  • Energialuokka:
    ei lainmukaista energiatodistusta

Kustannukset

  • Vuokra:
    600 €/kk
  • Vakuus:
    1 kk vuokra
  • Kotivakuutus pakollinen:
    Kyllä
  • Vesimaksu:
    25 €/hlö/kk
  • Sähkö:
    vuokralainen hankkii oman sähkösopimuksen



Tee hakuvahti   Katso muut kohteemme

Tee hakemus tästä
Sulje

Jokaisen hakijan on täytettävä oma hakemus ja lisättävä lisätietoja-kenttään tieto, kenen kanssa on kohdetta hakemassa.

Submit application
Sulje

Each applicant must fill in their own application and add information in the additional information field with whom they are applying for the item.

Ota yhteyttä välittäjään

OVV Asuntopalvelut Hyvinkää
Hämeenkatu 21-23, 05800 Hyvinkää
hyvinkaa@ovv.com

Kysymyksiä liittyen asuntoon?

Lähetä viesti
Sulje

Lähetä viesti liittyen asuntoon

Kartta