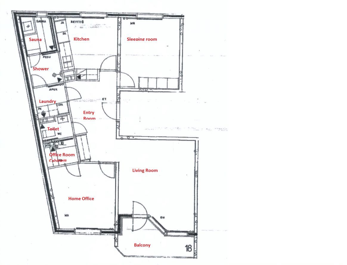
Kerrostalo, 79,5 m², 3h + k + vh + s + lasitettu parveke
Ihanakatu 7-9, 33100 Tampere / ARMONKALLIO
1040 €/kk
Tee hakemus asunnosta / Apply for this apartmentEsittely
Tilava, saunallinen kolmio Ihanakadulla Armonkalliolla.
Kiva sijainti kävelymatkan etäisyydellä Tampereen keskustasta. Lähistöltä löytyvät myös upeat ulkoilumaastot Näsijärven rantamaisemissa sekä paljon muita harrastusmahdollisuuksia.
Asunnossa on toimiva pohjaratkaisu sekä erityisen hyvin säilytystilaa komeroissa sekä vaatehuoneessa. Erillinen kodinhoitohuone, josta löytyy tila ja liitäntä pyykinpesukoneelle.
Vuokrasuhteeseen sitouduttava vuodeksi, jonka jälkeen sopimus jatkuu toistaiseksi voimassa olevana. Luottotiedot tarkastetaan!
Parhaiten pääset alkuun, kun käyt jättämässä asuntoon hakemuksen nettisivujemme ovv.com kautta. Ei sido vuokraamaan asuntoa!
Lisätiedot: Paavo Viljanen / OVV Asuntopalvelut puh. 050 514 3592 tai email. paavo.viljanen@ovv.com. Parhaiten tavoitat arkisin klo 10-16.
Perustiedot
-
Vapaa:01.04.2026
-
Vuokrasopimus:Toistaiseksi voimassaoleva
- Esittelyaika: Kysy esittelyaikaa!
-
Sijainti:Ihanakatu 7-9, 33100 Tampere / ARMONKALLIO
-
Tyyppi:Kerrostalo
-
Kerros:1
-
Kerrosten lukumäärä:3
-
Hissi:Ei
-
Pinta-ala:79,5 m²
-
Lemmikit sallittu:Ei
-
Tupakointi sallittu:Ei
-
Autopaikka:6kpl, 4autotallia osakkeina.
Kustannukset
-
Vuokra:1040 €/kk
-
Vakuus:2 kk vuokra
-
Kotivakuutus:Vuokralaisella oltava laaja kotivakuutus vastuuosineen koko vuokrasuhteen ajan.
-
Vesimaksu:20 €/hlö/kk
-
Sähkö:Omalla sopimuksella, oman kulutuksen mukaan.
Taloyhtiön tiedot
-
Yhtiön nimi:As Oy Ihanakatu 7-9
-
Taloyhtiön osoite:Ihanakatu 7-9, 33100 TAMPERE
-
Rakennusvuosi:1981
-
Energialuokka:F2013
-
Remonttihistoria:
Kaapeli-tv liittymä 1995. Vesirännit maalattu 1998. Ikkunapokat ja karmit
maalattu. Räystäät ja sadevesijärjestelmän uusiminen 2005.
Parvekkeiden kunnostus ja maalaus 2006. Vesikaton korjaus 2006.
Välikaton korjaus ja eristäminen 2006. Pihan puoleisen sokkelin korjaus,
salaojat ja kellarin seinän korjaus sekä pihakunnostus 2007-2008.
Kuntoarvion laatiminen 2009. Lämmönjakokeskus uusittu 2010.
Porrashuoneiden maalaus 2011. Ulko-oven uusiminen 2012.
Porrasaulan valaistuksen uusiminen 2013. Kylpyhuoneiden
kosteusmittaus 2013. Lämmöntasapainotus ja säätö 2013. Lämminvesi
pumpun (paine-eroventtiili) korjaus ja pattereiden ilmaus 2014. A2 ja B8
pesuhuoneiden korjaukset 2014. B10, B7 ja B4 pesuhuoneiden
korjaukset 2015. Turvakiskot ulkoportaisiin 2015. Kattoikkunoiden
tiivisteiden vaihto 2015. Autotallien ovien uusinta 2015. Kellarin pääty
oven ja pyörävaraston ovien uusiminen 2015. Viemäriputkiston ja
osittain KV putkiston röngten kuvaus NDT -Servitek 2015. Ikkunoiden ja
parvekeovien uusiminen 2016. Lukkosarjojen uusiminen 2016/2017.
Parvekkeiden puuseinien maalaus 2016. Etuoven katoksen maalaus
2016. Kattoturvatuotteiden päivittäminen 2017. IV-kanavien puhdistukset ja säädöt 2019. Raja-aidan rakentamista, PTS-suunnitelma teetetty 2020. Viemäreiden kunnon seurantatutkimus 2021. Elementtisaumojen korjaus 2022. Porraskäytävän valaisimet/liiketunnistimet 2023. Piharemontti, asfaltointi 2024 -
Tulevat remontit:Hallituksen kunnossapitotarveselvitys seuraavalle viidelle vuodelle: Sadevesijärjestelmän uusinta, sähköautojen latausvalmius, aidan uusinta, muurin kunnostus, seinän vedeneristys - Parvekekaiteet, rännit ja syöksytorvien uusinta.
-
Vesi:Vesimaksu 20 €/hlö/kk
