Vuokrattava kohde - OVV Asuntopalvelut

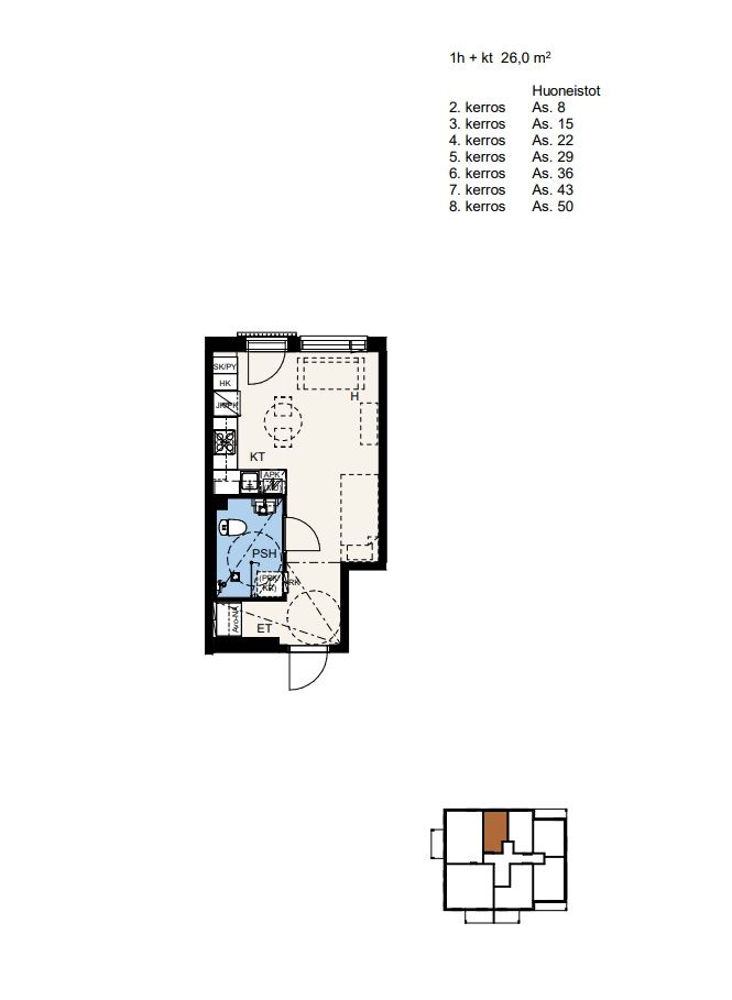
Kerrostalo, 26 m², 1h + k + ranskalainen parveke

Seppäläntie 8 A, 40320 Jyväskylä / Seppälä

515 €/kk

Tee hakemus asunnosta / Apply for this apartment

Esittely

Ihastuttava uutta vastaava yksiö palveluita pursuilevan Seppälän liikekeskuksen vieressä.
Asunnosta pääsee nopeasti kaupungille, lenkkipolulle tai vaikkapa Rasinrinteen puistoon piknikille.

Kehittyvällä Seppälän alueella arki sujuu rattoisasti. Seppälän Prisman ympärille keskittynyt palveluverkosto takaa, että peruspalvelut ovat lähellä ja loputkin löytyvät kauppakeskus Sepästä. Pitkä matka ei ole myöskään alueen kouluihin tai päiväkoteihin. Alueen luontopoluille ja hiihtoladuille pääsee hetkessä ja esimerkiksi jalkapallon potkiminen onnistuu Huhtasuon nurmikentällä. Myös keilahalli on vartin kävelymatkan päässä.

Talosta löytyy mm. valokuitu (10M ilmainen – nopeutta nostettavissa edullisesti). Kaapeli-TV (Elisa) ja asumismukavuutta nostava vesikiertoinen lattialämmitys.

Vuokrasopimus toistaiseksi voimassa olevana, vuokrasopimukseen sitouduttava kuitenkin vähintään vuodeksi – aiemmin irtisanottaessa 1 kk:n vuokraa vastaava summa hyvitettävä vuokranantajalle.

Perustiedot

  • Vapaa:
    01.04.2026
  • Vuokrasopimus:
    Toistaiseksi voimassaoleva
  • Esittelyaika: Kysy esittelyaikaa!
  • Sijainti:
    Seppäläntie 8 A, 40320 Jyväskylä / Seppälä
  • Tyyppi:
    Kerrostalo
  • Kerros:
    6
  • Kerrosten lukumäärä:
    8
  • Hissi:
    Kyllä
  • Pinta-ala:
    26 m²
  • Lemmikit sallittu:
    Ei
  • Tupakointi sallittu:
    Ei
  • Rakennusvuosi:
    2022
  • Energialuokka:
    A2018

Kustannukset

  • Vuokra:
    515 €/kk
  • Vakuus:
    1 kk vuokra
  • Kotivakuutus:
    Vuokralaisella oltava laajaturva kotivakuutus vuokrasuhteen ajan.
  • Vesi:
    Vesimaksuennakkona 20 euroa/hlö/kk - tasauslaskutetaan kulutuksen mukaan
  • Vesimaksu:
    Kulutuksen mukaan
  • Sähkö:
    Vuokralaisen otettava oma sähkösopimus.



Tee hakuvahti   Katso muut kohteemme

Tee hakemus tästä
Sulje

Jokaisen hakijan on täytettävä oma hakemus ja lisättävä lisätietoja-kenttään tieto, kenen kanssa on kohdetta hakemassa.

 
Submit application
Sulje

Each applicant must fill in their own application and add information in the additional information field with whom they are applying for the item.

Ota yhteyttä välittäjään

OVV Asuntopalvelut Jyväskylä
Yliopistonkatu 6, 40100 Jyväskylä
jkl@ovv.com
050 341 0224
045 133 6440

Lähetä viesti OVV-toimistoon mikäli esittelyaikaa ei ole ilmoitettu kohteen tiedoissa

Kartta