Vuokrattava kohde - OVV Asuntopalvelut

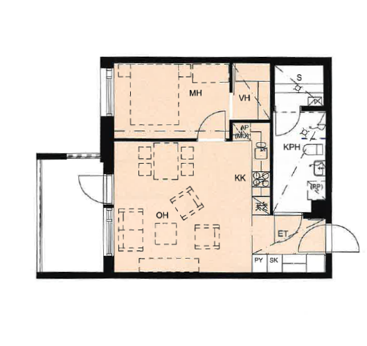
Kerrostalo, 48,5 m², 2h + k + vh + s + lasitettu parveke

Messuportinkatu 4 A, 70840 Kuopio / Lehtoniemi

750 €/kk

Tee hakemus asunnosta

Esittely

Ylimmän kerroksen kaksio lasitetulla parvekkeella Messuportinkadulla. Avokeittiössä astianpesukone, liesi+liesituuletin sekä jääkaappipakastin. Kylpyhuoneessa suihku, sauna sekä pesukoneliitäntä. Eteisestä löytyy kaappitilaa sekä makuuhuoneessa vaatehuone. Matkaa lähimpään kauppaan alle 500 metriä ja keskustaan noin kuusi kilometriä. Saaristokaupunki-Keskusta välillä on hyvät bussiyhteydet. Huoneistolle ei kuulu autopaikkaa, mutta niitä on vuokrattavissa erikseen. Kohde vuokrataan mielellään pidemmäksi aikaa, kuitenkin vähintään vuodeksi. Asunto kuvattu 08/23.

Videoesittely: https://youtube.com/embed/6MlCvJIyeRI

Vuokrasopimus toistaiseksi voimassa oleva, mutta mikäli vuokrasuhde kestää alle vuoden, tulee maksettavaksi 1kk:n vuokraa vastaava sopimussakko. Vuokrasuhteessa noudatetaan myös alalla hyväksyttyä Hyvää Vuokratapaa.

Vuokran korotusehdot: Ensimmäinen mahdollinen korotusajankohta vuoden päästä vuokrasuhteen alkamisesta. Vuokranantaja voi korottaa vuokraa vuosittain elinkustannusindeksin nousua vastaavasti tai enintään 4%.

Videoesittely

Perustiedot

  • Vapaa:
    Heti
  • Vuokrasopimus:
    Toistaiseksi voimassaoleva
  • Esittelyaika: Kysy esittelyaikaa!
  • Sijainti:
    Messuportinkatu 4 A, 70840 Kuopio / Lehtoniemi
  • Tyyppi:
    Kerrostalo
  • Kerros:
    4
  • Kerrosten lukumäärä:
    4
  • Hissi:
    Ei
  • Pinta-ala:
    48,5 m²
  • Lemmikit sallittu:
    Neuvoteltavissa
  • Tupakointi sallittu:
    Ei
  • Autopaikka:
    Autohallipaikka vuokrattavissa erikseen 70€/kk viereisessä parkkihallissa (Lehtoniemen Parkki II)
  • Taloyhtiön tilat:
    huoneistokohtainen häkkivarasto, kuivaushuone ja ulkoiluvälinevarasto

Kustannukset

  • Vuokra:
    750 €/kk
  • Vakuus:
    1 kk vuokra
  • Kotivakuutus pakollinen:
    Kyllä
  • Vesimaksu:
    Kulutuksen mukaan
  • Sähkö:
    Kulutuksen mukaan, omalla sopimuksella

Taloyhtiön tiedot

  • Yhtiön nimi:
    Asunto Oy Lehtoniemen Säihke
  • Taloyhtiön osoite:
    Messuportinkatu 4 A, 70840 KUOPIO
  • Rakennusvuosi:
    2014
  • Energialuokka:
    C2013
  • Remonttihistoria:
    Talo valmistunut 2014
  • Vesi:
    Vesimaksu kulutuksen mukaan



Tee hakuvahti   Katso muut kohteemme

Tee hakemus tästä
Sulje

Jokaisen hakijan on täytettävä oma hakemus ja lisättävä lisätietoja-kenttään tieto, kenen kanssa on kohdetta hakemassa.

 
Submit application
Sulje

Each applicant must fill in their own application and add information in the additional information field with whom they are applying for the item.

Ota yhteyttä välittäjään

OVV Asuntopalvelut Kuopio
Puijonkatu 27 (2 krs.), 70100 Kuopio
kuopio@ovv.com
017-363 5566
044-363 5561
txt 050-902 0037

Lähetä viesti OVV-toimistoon mikäli esittelyaikaa ei ole ilmoitettu kohteen tiedoissa

Kartta