Vuokrattava kohde - OVV Asuntopalvelut

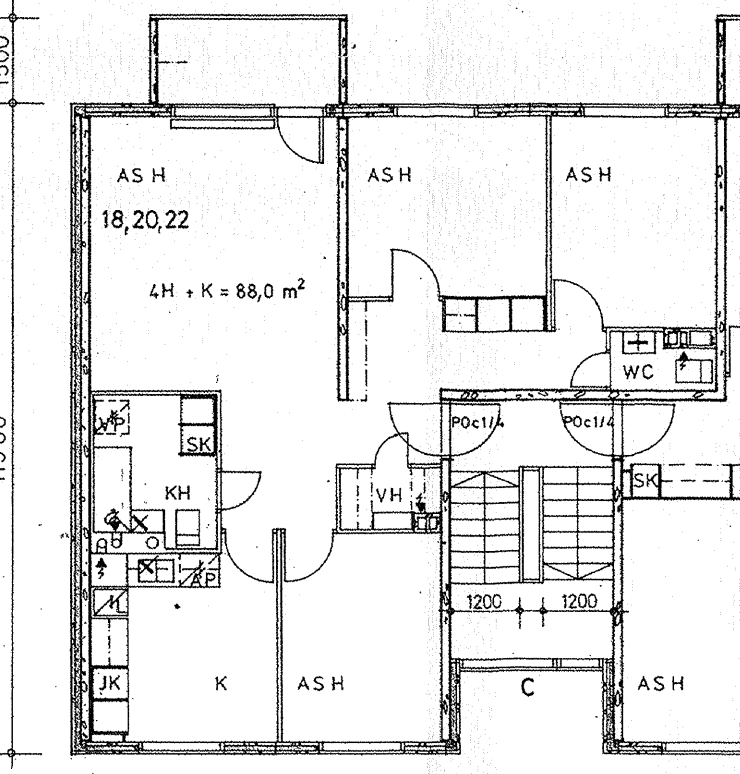
Kerrostalo, 88 m², 4h + k + vh + lasitettu parveke

Jussilankatu 11, ylin kerros, 05880 Hyvinkää / Paavola

880 €/kk

Tee hakemus asunnosta / Apply for this apartment

Esittely

Hyvinkään Paavolassa siistikuntoinen perheasunto. Talon 3.kerroksessa. Talossa ei ole hissiä.
Tilava kylpyhuone, pyykinpesukone mahtuu sinne hyvin.
Kolme makuuhuonetta. Kylpyhuone ja erillinen wc. Olohuoneen yhteydessä lasitettu parveke.
Vaatehuone.

Asunto on taloyhtiön hallintaanottama ja vuokrasopimus voi päättyä kun hallintaanotto päättyy joulukuussa 2027. Irtisanomisaika AHVL.n mukainen. Vuokralaisen irtisanomissuoja vuoden asumisen jälkeen 6kk.

Luottotiedot tarkistetaan. Kelan maksusitoumus vakuudeksi sopii.
Sovi näyttö! tiina.lindroos@ovv.com

Perustiedot

  • Vapaa:
    Heti
  • Vuokrasopimus:
    Toistaiseksi voimassaoleva
  • Esittelyaika: Kysy esittelyaikaa!
  • Sijainti:
    Jussilankatu 11, ylin kerros, 05880 Hyvinkää / Paavola
  • Tyyppi:
    Kerrostalo
  • Kerros:
    3
  • Kerrosten lukumäärä:
    3
  • Hissi:
    Ei
  • Pinta-ala:
    88 m²
  • Lemmikit sallittu:
    Mahdollisesti erikseen sovittaessa
  • Tupakointi sallittu:
    kielletty myös parvekkeella
  • Autopaikka:
    Isännöitsijän kautta 15€/kk
  • Rakennusvuosi:
    1977
  • Energialuokka:
    G2013

Kustannukset

  • Vuokra:
    880 €/kk
  • Vakuus:
    1 kk vuokra
  • Kotivakuutus pakollinen:
    Kyllä
  • Vesimaksu:
    25 €/hlö/kk
  • Sähkö:
    Vuokralainen tekee oman sähkösopimuksen.



Tee hakuvahti   Katso muut kohteemme

Tee hakemus tästä
Sulje

Jokaisen hakijan on täytettävä oma hakemus ja lisättävä lisätietoja-kenttään tieto, kenen kanssa on kohdetta hakemassa.

Submit application
Sulje

Each applicant must fill in their own application and add information in the additional information field with whom they are applying for the item.

Ota yhteyttä välittäjään

OVV Asuntopalvelut Hyvinkää
Hämeenkatu 21-23, 05800 Hyvinkää
hyvinkaa@ovv.com

Kysymyksiä liittyen asuntoon?

Lähetä viesti
Sulje

Lähetä viesti liittyen asuntoon

Kartta