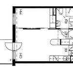
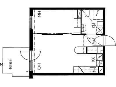
Kerrostalo, 35,5 m², 1h + kk + kph + parveke
Kääpiöidenpolku 4 B, 00820 Helsinki / ROIHUVUORI
585.04 €/kk
Tee hakemus asunnosta / Apply for this apartmentEsittely
Kääpiöidenpolku 4 sijaitsee vehreällä ja väljään rakennetulla alueella Roihuvuoressa, lähellä luontoa ja merta. Roihuvuori on moderni lähiö metsäisessä ympäristössä ja asuinalueena yhä enemmän nuorten suosiossa. Alueen erikoisuus ovat japanilaistyylinen puutarha sekä kirsikkapuisto, jossa vietetään vuosittain kirsikkapuiden kukintoa juhlistavaa Hanami-juhlaa. AYY:n talo Kääpiöidenpolulla on lähellä ruokakauppoja, ja Itäkeskuksen palvelut ovat
puolentoista kilometrin päässä. Talon läheisyydestä löytyvät myös bussipysäkit, joista kulku metroasemille käy helposti. Siilitien metroasemalle on noin 1.5 kilometrin kävelymatka. Matka Otaniemeen kestää päälle 40 minuuttia.
AYY:n asunnot Kääpiöidenpolulla ovat suuria yksiöitä ja käytännöllisiä kaksioita sekä kimppa-asujille että perheille. Yksiöissä on joko alkovi tai pienellä väliseinällä ja liukuovilla erotettu makuuhuone. Isommista kaksioista löytyy kaksi makuuhuonetta. Pienemmissä kaksioissa taas on erillinen makuu- ja olohuone. Kaikissa asunnoissa lisätilaa tuo myös joko parveke tai terassi. Talossa on asukkaiden käytössä oleva kerhotila.
Tämä koti on kuin kaksio. Makuutila on erotettu liukuovella. Tehokkaasti käytetyt neliöt mahdollistavat edullista asumista mainiolla sijainnilla. Avarat maisemat talon ylimmästä, viidennestä kerroksesta.
Ota yhteyttää ja sovitaan sinulle sopiva esittelyaika
Vuokrasopimus toistaiseksi voimassa oleva, mutta mikäli vuokrasuhde kestää alle vuoden, tulee maksettavaksi 1kk:n vuokraa vastaava sopimussakko. Vuokrasuhteessa noudatetaan myös alalla hyväksyttyä Hyvää Vuokratapaa.
Perustiedot
-
Vapaa:07.04.2026. Heti vapaa
-
Vuokrasopimus:Toistaiseksi voimassaoleva
- Esittelyaika: Kysy esittelyaikaa!
-
Sijainti:Kääpiöidenpolku 4 B, 00820 Helsinki / ROIHUVUORI
-
Tyyppi:Kerrostalo
-
Kerros:5
-
Kerrosten lukumäärä:5
-
Hissi:Kyllä
-
Pinta-ala:35,5 m²
-
Lemmikit sallittu:Kyllä
-
Tupakointi sallittu:Ei tupakointia
-
Autopaikka:Taloyhtiön varaustilanteen mukaan, 10 €/kk
-
Rakennusvuosi:2002
Kustannukset
-
Vuokra:585,04 €/kk
-
Vakuus:1 kk vuokra
-
Kotivakuutus pakollinen:Kyllä
-
Vesi:Vesi kuuluu vuokraan
-
Vesimaksu:Vesi kuuluu vuokraan
-
Sähkö:Vuokralaisen omalla sopimuksella
